Дорнмас

Дорнмас

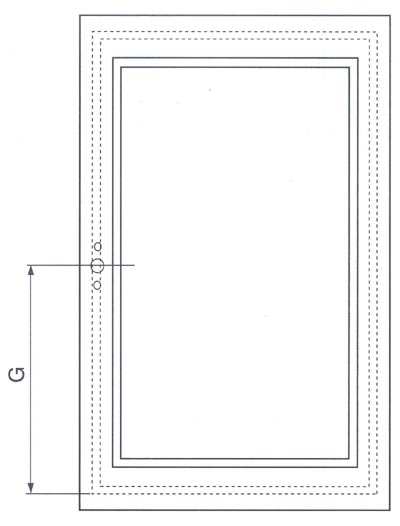
Расстояние от фальца створки до центра отверстия по ручку.

Поиск: Дорнмас

blog comments powered by Disqus

Другие определения

Главный профиль

Главный профиль

Профиль, который выполняет прочностную функцию в качестве составной части оконных, балконных и дверных конструкций (профили коробок, створок, импостов и в отдельных случаях штульповые, соединительные и расширительные профили).

Нажимной гарнитур

Нажимной гарнитур

Комплект дверной фурнитуры (ручки, накладки, замок) предназначен для использования во входных дверях.

Профиль ПВХ ламинированный

Профиль ПВХ ламинированный

Профиль, покрытый с одной или двух лицевых сторон пленкой различных цветов.